VINÍCOLA CASA BUENROSTRO__

Arquitectxs: Emilia Seidel, Raúl G. Iturribarria y Alan Hernández Hansen

Año: 2021

Área: 650 m2

Locación: Valle de Guadalupe, BCS, México

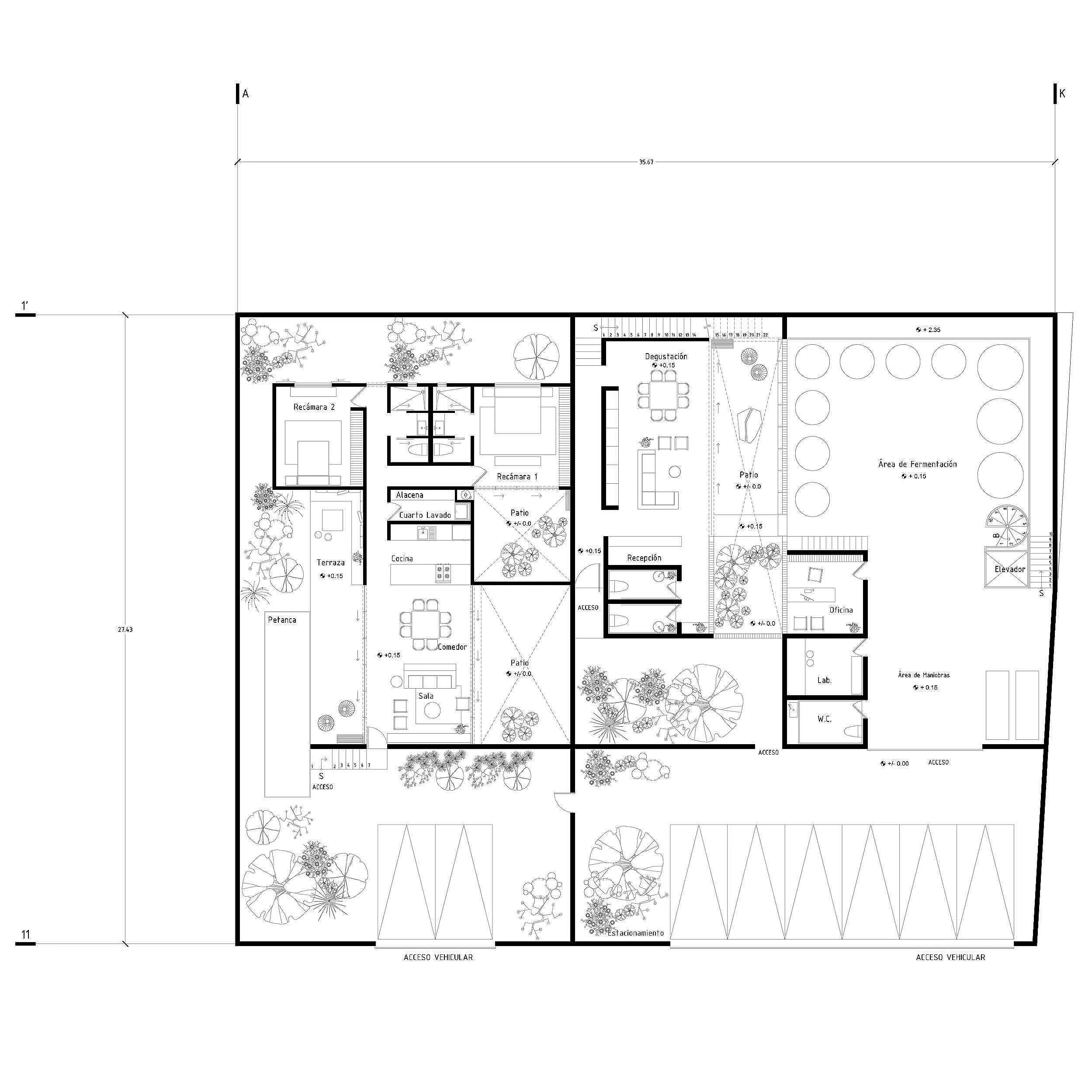
Plano arquitectónico de una casa con áreas verdes, jardín, habitaciones, terraza, área de fermentación, espacio de oficina, laboratorio, estacionamiento y acceso vehicular.

PLANTA DE CONJUNTO

Un diagrama circular con una línea negra gruesa que atraviesa una parte del círculo.
Plano arquitectónico de un diseño de espacio con áreas de terraza, patio, bodega, zona de fermentación y degustación, con vegetación y escaleras.

CORTE A-A’

Vista frontal de una casa moderna con paredes de concreto, áreas verdes y estructura de acero roja en el techo.
Joven caminando en un área de cervecería industrial con tanques de fermentación de acero inoxidable y equipo de fabricación de cerveza.
Interiores de una casa moderna con una persona sentada en un sillón verde y otra en la recepción de bienvenida
Personas en un espacio exterior, con plantas y un edificio moderno con un techo rojo, en un día nublado.