CASA HABITACIÓN, AGUA 160__

Arquitectxs: Emilia Seidel, Alan Hernández Hansen, César Pérez Becerril

Año: 2024

Área: 200 m2

Locación: Jardines del Pedregal, CDMX, México

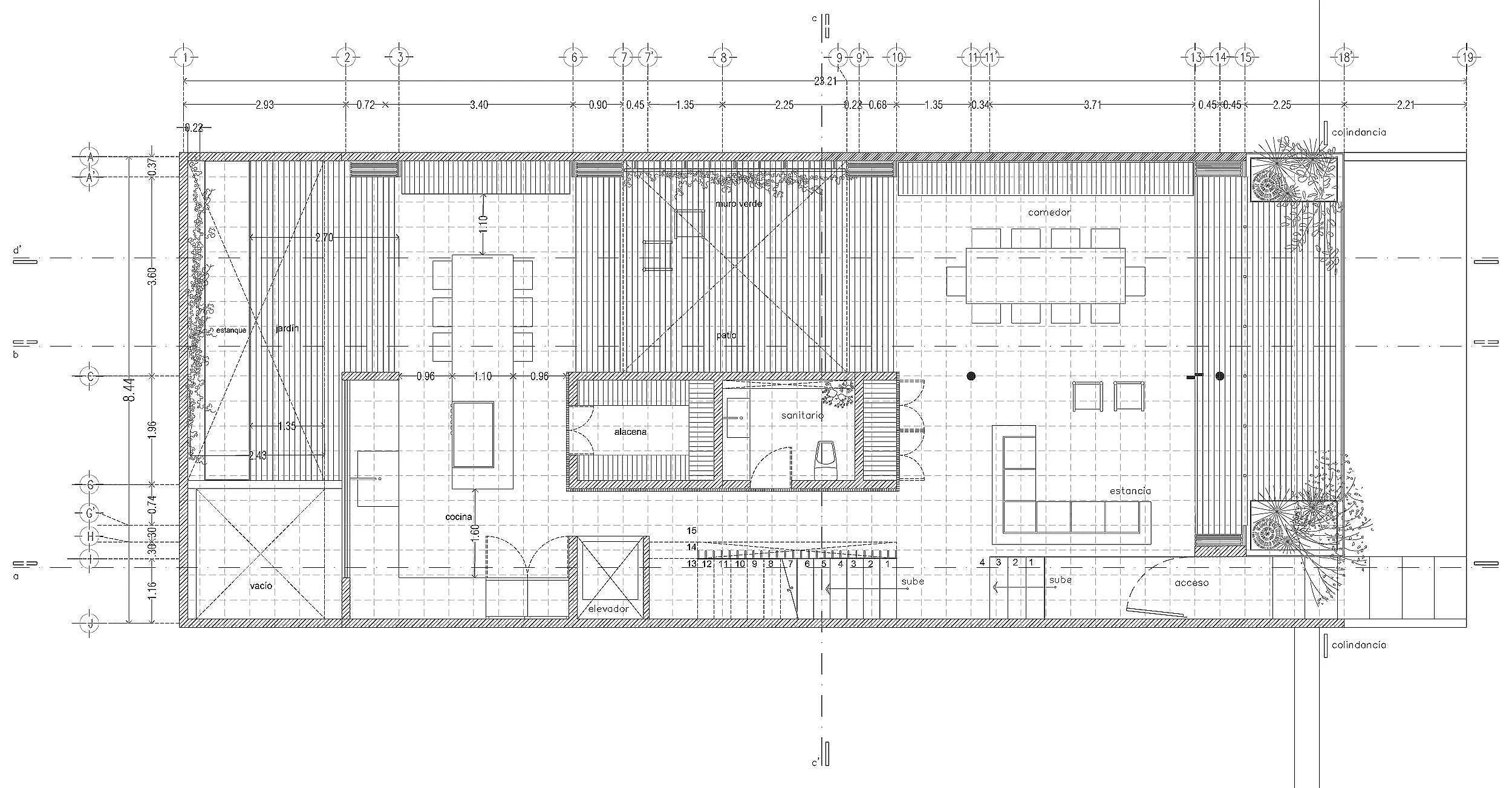
Plano arquitectónico de una casa, mostrando habitaciones, cocina, baños, área de jardín y distribución general del espacio.

PLANTA BAJA

Gráfico circular con una fracción en negro en la esquina superior derecha y líneas diagonalmente atravesando el círculo.
Vista interior de una sala y comedor con acabado moderno, muebles de madera, un sillón gris claro, una mujer sentada usando un teléfono móvil, ventanas grandes con vista a árboles verdes.
Vista desde un área interior que mira hacia una cocina moderna con barra, con una mujer sirviendo café. Al fondo, un muro verde con plantas y una pared de piedra. El suelo es de madera y hay paredes de concreto y madera.
Pasillo cubierto de madera, con paredes de madera a la derecha y ventanas de vidrio a la izquierda, y un niño jugando en el pasillo.